Skip to content
  • Image1 (with disclaimer)
  • Plan
2
LEASED!

LEASED! Permitted Childcare Centre for Lease (Adjacent to Primary School) – Officer VIC

Part of 25 Tivendale Road, Officer VIC 3809

Excellent opportunity to lease a childcare centre located right next to Officer Primary School, within Officer’s educational hub, and close to two sold-out housing estates, just 140m and 400m away, that will deliver 91 new homes.

Highlights:

  • Building permit in place, ready for construction.
  • Located right next to Officer Primary School.
  • Sold-out housing estates, 140m and 400m away, will deliver 91 new homes.

Benefits of this opportunity:

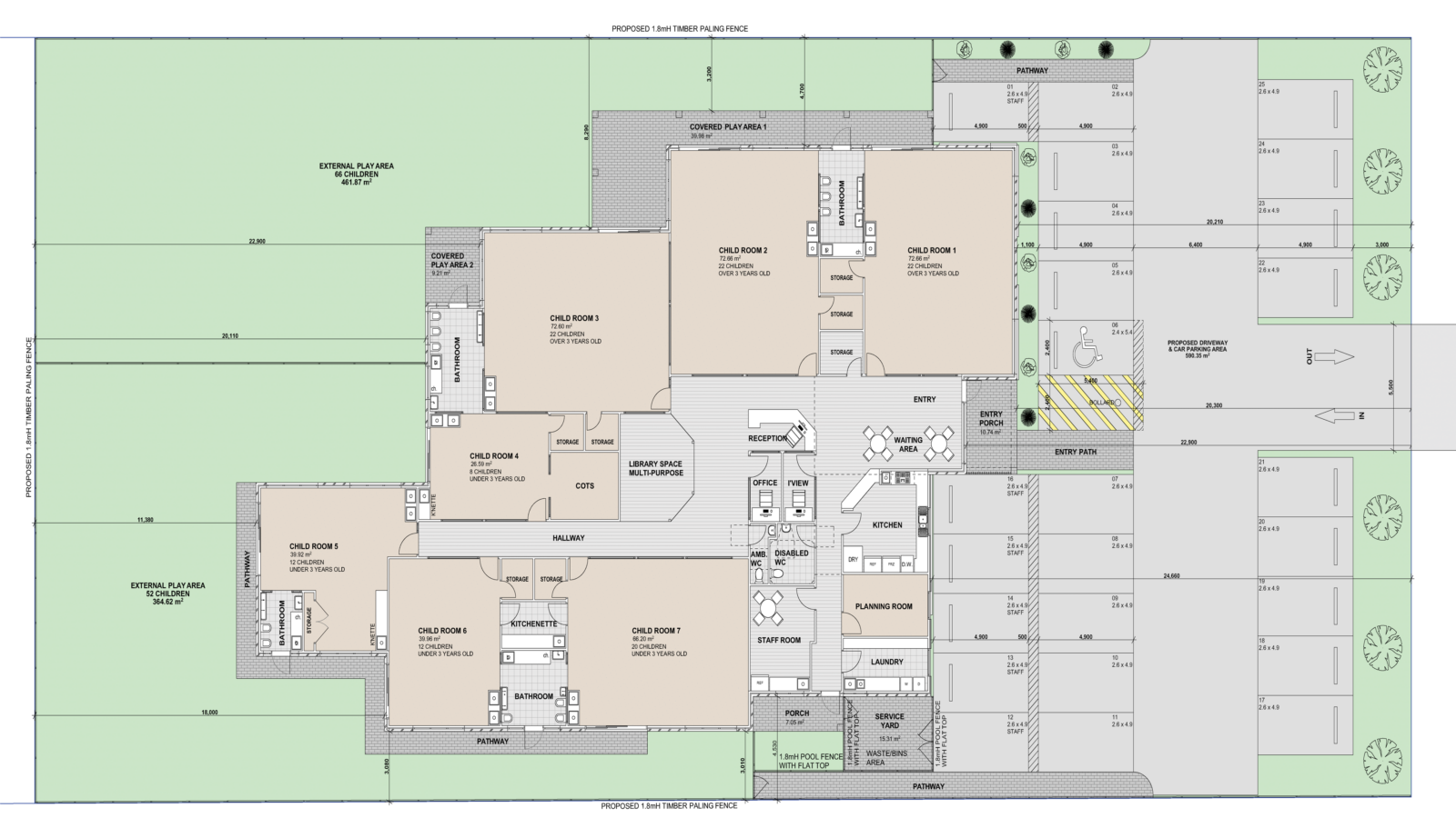
  • Shovel-ready, permitted 118-place childcare centre for lease.
  • Architecturally designed centre with standout features.
  • Strategically positioned next to Officer Primary School to attract enrolments from local families.
  • The nearest sold-out housing estates at 46 Tivendale Road and 60 Tivendale Road will deliver 91 new homes in close proximity to the centre.
  • Will provide care and education to a market of 3,059 children aged 0-4 (3 km radius).
  • Daily fees in the catchment reach up to $171 per child.
  • Just 600 m* from Minaret College Officer Campus and 700 m* from St Margaret’s Berwick Grammar, all located along the same road.
  • Officer is one of the most populated suburbs within the Cardinia Shire Council and continues to grow rapidly. This is reflected in the development of 53 new housing estates in various stages of planning and construction.
  • Cardinia Shire’s population currently exceeds 118,000 and is forecast to grow to over 200,000 by 2041, highlighting strong future demand.
  • Prominent 33.2 m* street frontage beside a primary school.
  • Long term lease is available.

LEASED!

For more information, please contact Wendy Zhou at 0422 011 188 to receive a detailed information memorandum.

*approximately

********

ASL Real Estate and/or their agents, for themselves and for the vendor/landlord of these properties for whom they act give notice that (i) All information given in relation to this property, whether contained in this document or given orally, is given without responsibility, (ii) All information given in relation to these properties is current up until the creation and distribution of this document, (iii) Intending purchasers/tenants should satisfy themselves as to the accuracy or truth of all information given by their own inspections, searches, inquiries, advices or as is otherwise necessary. (iv) No person in the employment of ASL Real Estate has any authority to make or give any representation or warranty.

ANY IMAGE RELATING TO THIS PROPERTY IS FOR INDICATIVE PURPOSE ONLY.

By sending an enquiry to ASL Real Estate you agree to be marketed to in the future for similar properties through email alerts/SMS messages. This is at NO COST to you and at any time you wish to cancel your subscription please simply reply STOP.

http://www.consumer.vic.gov.au/duediligencechecklist

Property Features
  • Childcare
  • Land is 2,360 m²
  • Floor Area is 723.84 m²
  • 25 Car Spaces
Commercial Features
Highlight 1

Building permit in place

Highlight 2

Ready for construction

Highlight 3

Adjacent to a primary school

Zone

Urban Growth Zone (UGZ)

Inspection Times

No inspections are scheduled at this time.


Request more information

"*" indicates required fields